Когда Уильям Морган придумал волейбол в 1895 году, какого-то стандарта для игровой площадки он не подразумевал – в разное время матчи проходили на площадках разных размеров. Только в 1925 году Международная федерация волейбола (FIVB) установила единый стандарт, действующий и сегодня.
Геометрия выбрана не просто так: пространство обеспечивает прекрасный игровой баланс между атакой и защитой. В этом материале рассмотрим, на площадке какого размера играют волейболисты, из каких зон она состоит, и для чего нужны те или иные разметки.
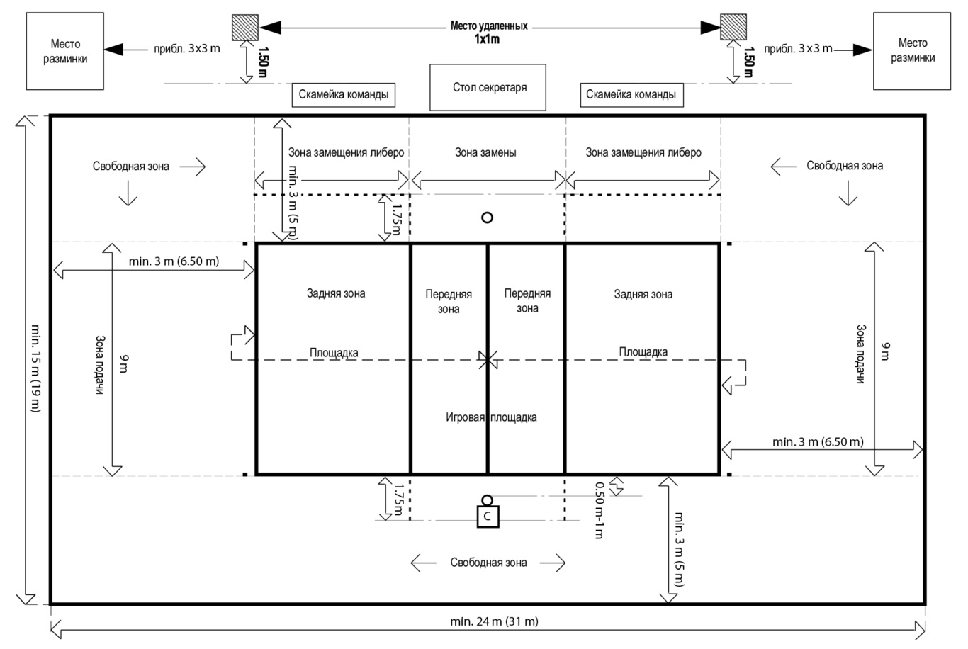
Волейбольная площадка: размеры и площадь
Размер волейбольной площадки 🏐 составляет 9 метров в ширину и 18 метров в длину, то есть общая площадь игровой зоны – 162 квадратных метра. Каждая команда располагается на своей половине. Она имеет форму квадрата размером 9 на 9 метров. По центру площадки проходит разделительная синяя линия, над которой натянута специальная сетка.
Зоны площадки в волейболе
Волейбольная площадка делится на несколько зон в соответствии с правилами игры. Каждая из них имеет свое предназначение и особенности.

Перед сеткой расположена передняя зона – она находится между задней и простирается до свободной зоны. На этом отрезке площадки разыгрываются атаки: действуют центральный нападающий и доигровщик.
Задняя зона делит площадку между передней зоной и зоной подачи. Здесь волейболисты защищаются, принимают мячи и начинают атаки из глубины.
Зоной подачи называется участок шириной в 9 метров за лицевой линией. Он ограничивается задней и свободными зонами. Следуя из названия, отсюда игроки совершают подачу на чужую половину площадки: в этот момент они не имеют права покидать этот участок.
Свободная зона – пространство вокруг площадки (не менее 3 метров по бокам и до 5-6 метров за задней зоной), куда могут выходить волейболисты для сохранения мяча в игре.
Зона замены находится только с одной стороны площадки и ограничена обеими линиями атаки (передними зонами) вплоть до столика секретаря. Она обеспечивает безопасный процесс смены игроков без вмешательства в ход игры.
Отдельно выделяются зоны замещения либеро. Они находятся рядом со скамейками коллективов в свободной зоне. Здесь заменяют волейболиста, играющего на позиции либеро (он может заменять игроков в задней линии, но не имеет права атаковать выше уровня сетки или подавать мяч).
Остаются места для разминки и место для удаленных. Первые располагаются у обеих команд на разных концах площадки, но всегда за пределами свободной зоны. Зона для удаленных – это квадрат метр на метр в контрольной зоне рядом со столиком секретаря.
Разметка волейбольной площадки
Разметка волейбольной площадки строго регламентирована и всегда универсальна, она состоит из семи линий: четырех ограничительных, одной средней и двух атакующих. Разметка наносится белым или ярким красным цветом, чтобы линии было видно на любом фоне при любых обстоятельствах. Внешняя их граница должна быть четкой и непрерывной. Рассмотрим каждую из них.

Ограничительные линии фиксируют границы волейбольной площадки на две лицевые и две боковые. По сути, это периметр игровой зоны.
Средняя линия разделяет площадку пополам и проходит строго по центру, от одной боковой до другой длинной в 9 метров. Соответственно, каждая команда играет на своей половине площадки.
Линия атаки определяет границы передней зоны, то есть от сетки по центру до задней зоны. Ее размер – 3 метра.
Также существует ограничительнаялиния тренера, подразумевающая участок площадки, за который не могут выходить наставники команд. Она продолжается от линии атаки до лицевой линии волейбольного поля.
Высота сетки
В женских соревнованиях высота сетки составляет 2 метра 24 сантиметра. В волейболе среди мужских команд она чуть больше – 2 метра 43 сантиметра. В обоих случаях сетка вешается на стойки высотой в 2 метра 55 сантиметров.
Таким образом, размер волейбольной площадки составляет 9 метров в ширину и 18 в длину, посередине она разделена сеткой (ее высота зависит от того, играют ли женщины или мужчины). Эта площадка, в свою очередь, состоит из зон, основные из которых – передняя, задняя, свободная и зона подачи. Все участки площадки размечены линиями: ограничительными, средними и атакующими.
Другие интересные материалы про нюансы волейбола:
Нет комментариев